top of page
Create Your First Project
Start adding your projects to your portfolio. Click on "Manage Projects" to get started
Architecture : Villa A
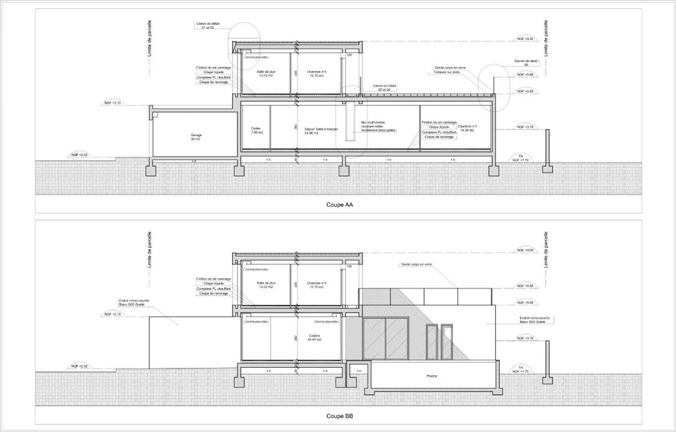
La villa A est un projet de maison individuelle réalisée en 2015 dans le commune de La Grande Motte. En respectant les obligations du règlement du lotissement, et le cahier des charges de nos clients, nos avons conçu une villa contemporaine de 240 m2, riche en détails architecturaux.






































bottom of page

